京都府南丹市日吉町の民家物件
京都府南丹市日吉町佐々江-売民家 |
| 価格/1150万 NEW !! |
所在地 |
京都府南丹市日吉町佐々江 |
||
交通 |
JR山陰本線日吉駅より17.5K |
||
土地面積 |
449.17m2 |
地目 |
宅地 |
建蔽率 |
% |
容積率 |
% |
都市計画 |
用途地域 |
||
前面道路 |
m |
地勢 |
|
現況 |
引渡 |
相談 |
|
土地権利 |
所有権 |
取引態様 |
仲介 |
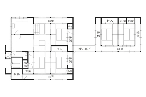
| 建築物 | |||
構造 |
木造平屋建 |
床面積 |
155.17㎡ |
建築 |
間取り |
||
付属建物 |
|||
設備 |
|||
その他 宅地、山林、畑、雑種地有り 倉庫、物置有り |
|||
![]() ![]() ![]() ![]() ![]() ![]() ![]() ![]() ![]() ![]() ![]() ![]() ![]() |
|||
![]() |
|||
近畿のリゾート・田舎暮らし不動産
Tel:078-201-2746
物件のご案内・お問い合わせ・お申込はお気軽に
(09023506396)山元まで
MAIL t-yamamoto@kominka-trust.com
TOP PAGE>田舎暮らし中古物件>本ページ
Copyright© 2014 不動産 All Rights Reserved













